内蒙古昆明卷烟有限责任公司欢迎您
本平台为非涉密平台 严禁处理、传输国家秘密
  • 首页 HOME
  • 走进蒙昆 ABOUT US
  • 新闻中心 NEWS
  • 企业文化 CULTURE
  • 蒙昆精品 PRODUCT
  • 社会责任 RESPONSIBILITY
东大门亮化维修项目招标公告
2012-09-10 176人关注

内蒙古昆明卷烟有限责任公司东大门亮化维修项目招标公告

编号:第064号


    内蒙古昆明卷烟有限责任公司东大门亮化维修项目进行 公开招标,择优选择中标人,凡符合资格要求的潜在投标人均可参加报名。
现将招标有关报名事宜公告如下:
一、项目名称:东大门亮化维修
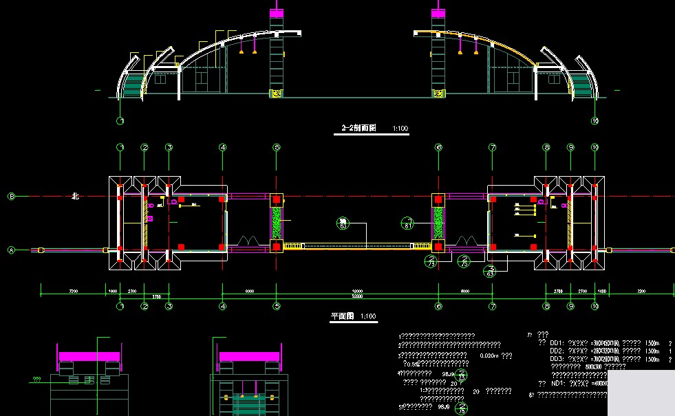
二、项目内容:亮化部分为公司东大门露天玻璃装饰灯箱改造。主要工作内容是拆除现有花岗岩石材帽顶,找到原有混凝土结构柱顶面,然后固定灯箱,亮化灯为LED模组照明。具体尺寸见附图。
三、资格要求:
(1)具有独立订立合同的权利
(2)具有履行合同的能力,包括专业、技术资格和能力,资金,设备和其他物质设施状况,管理能力,经验、信誉和响应的从业人员
(3)没有处于被责令停业,投标资格被取消,财产被接管、冻结、破产状态
(4)在最近三年内没有骗取中标和严重违约及重大工程质量问题。
四、投标报名须提供以下资料:
1.企业法人营业执照及税务登记证副本复印件;
2.具有工程施工资质证书
3.《安全生产许可证》复印件;
4.法定代表人资格证明书或法定代表人授权委托书复印件;
5.法定代表人身份证复印件;
6.委托代理人身份证复印件;
7.企业概况和相关业绩(附已签合同一份)
8、投标人的详细联系方式(需写清楚项目名称、招标编号、单位名称、联系人、联系电话、电子邮箱,传真号等)
9、不接受联合体投标
五、报名时间及地点
时间:自公告之日起至2012年9月17日16时30分止。
地点:呼和浩特市达尔登北路19号内蒙古昆明卷烟有限责任公司招标办公室(综合楼3楼302室) 邮编:010020
联系人:刘 力
联系电话:0471——4348398
传 真:0471——4348714
电子邮箱:1029405478@qq.com
请在工作时间联系:8:30——16:30
六、注意事项:
1. 报名单位将报名资料发传真或者扫描件发电子邮箱均可,务必写清详细联系方式(单位名称、联系人、联系电话、电子邮箱,传真号等)
2. 报名截止后概不受理任何报名事宜。
3. 报名及投标过程中所涉及的一切费用由投标申请人自行承担。
七、发布公告的媒介
本次招标公告同时在中国采购与招标网(http://www.chinabidding.com.cn/zbw/index.jsp)上公布。
    此公告


内蒙古昆明卷烟有限责任公司
二○一二年九月十日


 

售后热线 400-645-6166
售后邮箱 mkshfw@sina.com
蒙昆公司提示您,本网站含有烟草内容,谢绝未成年人访问
统计违法行为
举报电话:0471-4348622
邮  箱:mkjjjc@sina.com
2026 MENGKUN ALL RIGHTS RESERVED 蒙昆公司版权所有 蒙ICP备10000979号-1  法律声明 | 网站地图